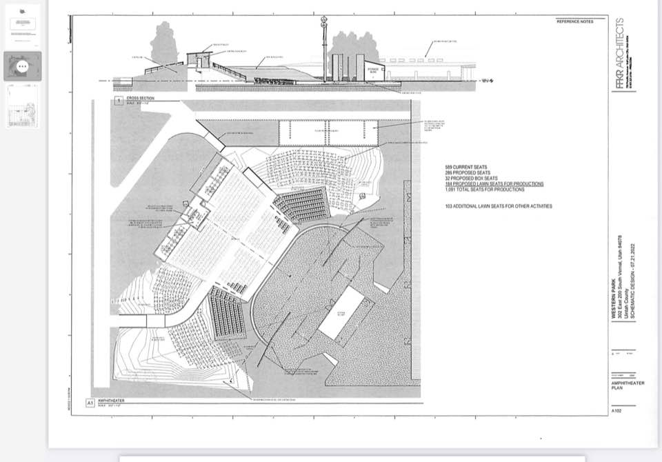
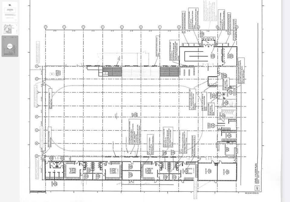
Planning continues on the remodel proposed for the Western Park ice rink and Outlaw Trail Amphitheater. Uintah County announced the project last spring and at the time Commissioner Haslem stated that there are no local tax dollars involved, only federal grant money. The latest plans show that tentatively, the berm will be all around both sides of the amphitheater stage to help block out the grandstand noises and the street on the north side. Additional seats will be added. The light and sound booth at the top will be expanded and box seats added. The berm would cover the existing entrance sidewalks and form tunnels on either side so the stage is ‘revealed’ when you come out of the tunnel. The stage will be rebuilt to be one level, wider and not so deep. There will be permanent wings built and a storage/set building at the back. The ice rink upgrade will provide meeting rooms and bathrooms that will be accessible from the outside.





